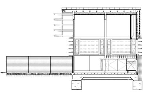
Contemporary interpretation of medieval timber framing in the south of England
The new structure is anchored by a gabion garden wall filled with reclaimed flint. The cedar framed building is a modern version of a medieval cruck timber framing which provides an open roof volume within. Horizontal cedar slats float over large areas of glazing, modulating light and views as well as relating to traditional horizontal wood cladding.
Firm: Adam Richards Architects




