New York Times features Allied Works project in near Sun Valley, Idaho
An article by Christopher Hawthorne in the NY Times features a modern residence in Ketchum by Portland, Oregon based Allied Works. The firm's website features only one teeny-tiny image of this project, but thankfully the Times has a slideshow accompanying their article.
Allied Works managed to sneak an aggressively contemporary house into Sun Valley, where the architectural style might be called hunting-lodge chic on steroids.Enjoy.
Firm: Allied Works Architecture
Article: NY Times - Sun Valley Surprise: Chalet So Spare
Originally posted 2/16/2005
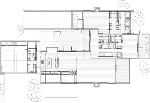
UPDATE: Allied Works has updated their website and now offers some detailed text and amazing images of the house including sketches and models in design development, construction shots and the completed project. We've added a few images, including a reduced plan by request. Please visit Allied Works' website for much more.
The Swig Residence is a year-round vacation home located in Sun Valley, Idaho. Located on a 1/2 acre site adjoining a protected landscape of sagebrush and aspen, the two-storey house responds to the site by taking advantage of the natural slope and views towards the open space, rolling hills and Mt. Baldy. The scheme is a garden wall that meanders through the site to create spaces for interior rooms and extensive outdoor courts, while providing specific views to the landscape. Horizontal metal roof planes float within or above the site-scaled masonry walls. The second storey is a glass pavilion that emerges above the stone walls. As the garden walls wrap inside to create living space and the bedroom suites, they will also used to display art. The openness to the landscape provided by the glass wall of the living room and its wide-open south-facing terrace contrast the more contained inner terrace off of the kitchen and dining room with views to the hills to east.






Inspiration for my files
Minimilist in nature but a work of Art
we just did a drive-by