A modern woodland home in the Chilterns
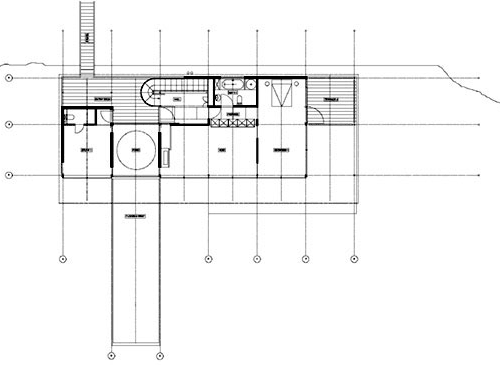
Designed by London based architect Níall McLaughlin, the house is a straightforward glass box concept laid out on a regularized 12 square grid. A second glass box protrudes perpendicular to the main structure and encloses a lap pool.
Firm: Níall McLaughlin Architects
Award: Irish Architecture Awards 2002




